Inspiré de notre populaire chalet MEZA, cette toute dernière itération revêt un minimalisme et une allure épurée résolument scandinave et de jolis bandeaux de fenêtres verticaux en façade. Ce grand classique en A indémodable est doté de son incontournable plan à aire ouverte et de son nouvel emplacement cuisine et son îlot de style bar très design. Salon et salle à manger sont surplombés d’un plafond cathédral et équipés de 2 grandes portes-patio de 8’x8’ et de fenêtres panoramiques baignant les espaces de vie de lumière naturelle et de points de vue sur le lac, la montagne ou la nature et d’un accès rapide vers l’extérieur.
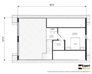
De plus, au rez-de-chaussée, cette version présente une belle entrée mudroom avec garde-robe walk-in, 1 chambre à coucher avec garde-robe et grande fenêtre, une salle de bain complète avec bain autoportant et douche indépendante, un espace buanderie et un escalier bien positionné pour accéder à la mezzanine qui offre un espace soupente accueillant une chambre additionnelle avec un énorme garde-robe walk-in. Le chalet Meza 3.0 propose un aménagement et un style idéal pour vous sentir en vacances 365 jours par année, profiter des weekends en famille ou pour louer sur les plateformes de location en ligne pour un revenu de location saisonnière.
Le reste de l’aménagement est à vous de jouer selon vos besoins et votre terrain.
*Les images sont à titre indicatif uniquement.
Les modules de maison préfabriqués et construits en usine incluent les planchers, les murs R29.76, la toiture R52.08, l’isolation 6000° jour, les portes et fenêtres, le revêtement de toiture et membrane sous bardeaux, le revêtement extérieur, le gypse, les armoires de cuisine et de salle de bain, les équipements sanitaires, la plomberie et l’électricité (selon plan et devis).
Porte d’entrée en acier, porte-patio et fenêtres en PVC à haut rendement énergétique certifiés Energy Star (selon sélection de produits, plan et devis) et installation en usine.
Revêtements extérieurs (matériaux selon plan et devis), ornement décoratif (selon plan et devis), revêtement de toiture (selon plan et devis), soffites, fascia de toit et installation. Luminaires extérieurs et installation.
Gypse, portes intérieures, poignées et quincaillerie et installation (selon plan et devis). Système de rangement à crémaillère ajustable, tringle et tablettes grillagées (en vrac, non-coupées, non-installées). Plinthes et chambranles (en vrac, non-coupées, non-installées). Fond de clouage et tuyau passe-fil fournis et installés en usine pour l’installation d'une TV murale. 4 porcelaines pour lumières au sous-sol préfilées en usine.
Armoires de cuisine, de salle de bain et de salle d’eau, comptoirs, poignées, quincaillerie, hotte de cuisine et installation (selon plan et devis).
Équipements sanitaires prédéfinis inclus dans les modules: bain, base de douche et porte de douche, toilette, évier, lavabo, robinetterie. Tuyauterie brute et installation en usine jusqu’au plancher du module (selon plan et devis). Base de douche en acrylique installée en usine.
Panneau électrique de 200 AMP pré-filé et branché. Inclus dans le(s) module(s): filage électrique, plinthes électriques, interrupteurs, plaques et prises de courant, luminaires extérieurs (selon plan et devis) et encastrés intérieurs (selon plan et devis).
Pré-installation des conduits de l’échangeur d’air et de l’aspirateur central (conduits intramuraux bruts préinstallés en usine jusqu’au plancher du rdc et 2e étage selon plan et devis). Achat et installation de l’échangeur d’air et de l’aspirateur central via vos installateurs.
Préfabrication de la galerie avant et marches extérieures en bois traité (selon plan et devis) fournies et installées. Poutres et colonnes extérieures en bois décoratif et/ou structural (selon plan et devis) fournies et installées. Transport jusqu'au chantier.
Livraison et transport des modules jusqu’au chantier par voie terrestre jusqu'à 300km de notre usine de Rivière-du-Loup inclus. Au-delà de 300km jusqu'à l'adresse de destination, frais de transport en sus. Installation des modules par grue. Installation sur un terrain typique incluse, frais en sus pour régions éloignés. Certaines conditions peuvent s’appliquer selon le type de terrain ou terrain atypique.
Une inspection terrain avant livraison. Livraison des modules par voie terrestre (selon devis). Installation des modules par grue sur votre fondation. Raccordement des modules. Installation et étanchéisation des modules et pignons (selon plan et devis). Raccordement intermodules électricité et plomberie. Complétion du revêtement extérieur, des soffites et fascia (selon plan et devis). Inspection contrôle qualité à la remise des clés.
*Cette liste est un aperçu général des inclusions et du processus de préfabrication en usine. Les spécifications sont détaillées dans le devis de soumission. Détails sujets à changement sans préavis. Certaines conditions peuvent s’appliquer. Pour en savoir davantage, prenez rendez-vous avec un conseiller.
Achat de votre terrain. Accès au site. Branchements aux services publics ou privés (services d’aqueduc, d’égout, d’électricité ou puits, fosse septique, internet, etc.). Frais et gestion des services professionnels selon les besoins : étude de sol, arpenteur, notaire, financement, permis de construction, certificat de localisation, plan d’implantation, ingénieur (au besoin), adaptation pour zone sismique, frais de mutation, etc.
Frais, coordination et réalisation des travaux d’excavation, de fondation et de remblayage de la fondation.
Frais et gestion des sous-traitants pour branchements et raccordements des services (électricité, eau, égout, internet) au réseau privé ou public de distribution. Achat et frais d’installation et de calibration de l’échangeur d’air (conduits intramuraux préinstallés en usine jusqu’au plancher du rdc et 2e étage selon plan et devis). Conduits de l’échangeur d’air dans le plancher, bouton, clapets de sortie. Achat et frais d’installation de l’aspirateur central et accessoires (conduits préinstallés en usine jusqu’au plancher du rdc et 2e étage selon plan et devis). Achat et frais d’installation du chauffe-eau. Installation du fond de cave.
Matériel et frais pour la réalisation du tirage de joints, de la peinture, des soufflages et recouvrements de planchers et de céramiques; installation de la membrane sous céramique; installations du bain, porte de douche, robinets de bain et de douche, toilette après céramique/couvre-plancher. Coupe et installation des plinthes et chambranles après couvre-planchers. Coupe et installation des tablettes de garde-robe grillagées, tringle et crémaillère après peinture.
Matériel et frais de coordination et de réalisation des travaux de finitions intérieures du sous-sol : installation de la dalle de sous-sol, de l’isolation des murs de la fondation, du gypse sur le contour de la fondation, des fenêtres du sous-sol et installation des divisions, électricité (filage, plinthes électriques, thermostats, prises de courant et interrupteurs), plomberie (tuyauterie, drain et équipements sanitaires), gypse, escalier du sous-sol, tirage de joints, peinture, recouvrements de plancher et autres. Installation des prises et filage pour laveuse/sécheuse lorsqu’au sous-sol. Matériel et installation pour plomberie sous la dalle du sous-sol et raccordement de l’égout 3’’ au sous-sol, à partir du plancher jusque sous la dalle du sous-sol.
Décorations et luminaires intérieurs (selon plan et devis). Gouttières et installation. Aménagement paysager et stationnement. Foyer et sa préparation. Garage. Cabanon. Patio. Etc.
*Cette liste est un aperçu général des non-inclus. Les spécifications sont détaillées dans le devis de soumission. Détails sujets à changement sans préavis. Pour en savoir davantage, prenez rendez-vous.



